Rudolf Wild GmbH, Variable Exhibition Stand, Cologne, 2008

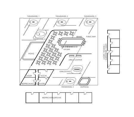
In colaboration with the event managment agency Wenger & Wittmann of Munich a variable exhibition stand concept has been developed to promote the Wild GmbH on trade fairs of their sector. With a tradition of over 70 years, WILD is the world’s leading privately owned manufacturer of natural flavor ingredients for the food and beverage industry. The space is devided into various sectors with ceiling hanging elements which contain the different product groups of the company. A large restaurant and several private offices were created. Various larger stand seizes have been studied. The concept has not been realized due to the severe financial crisis in 2009.