Home
Profile
Projects
Contact
Home
Profile
Projects
Contact
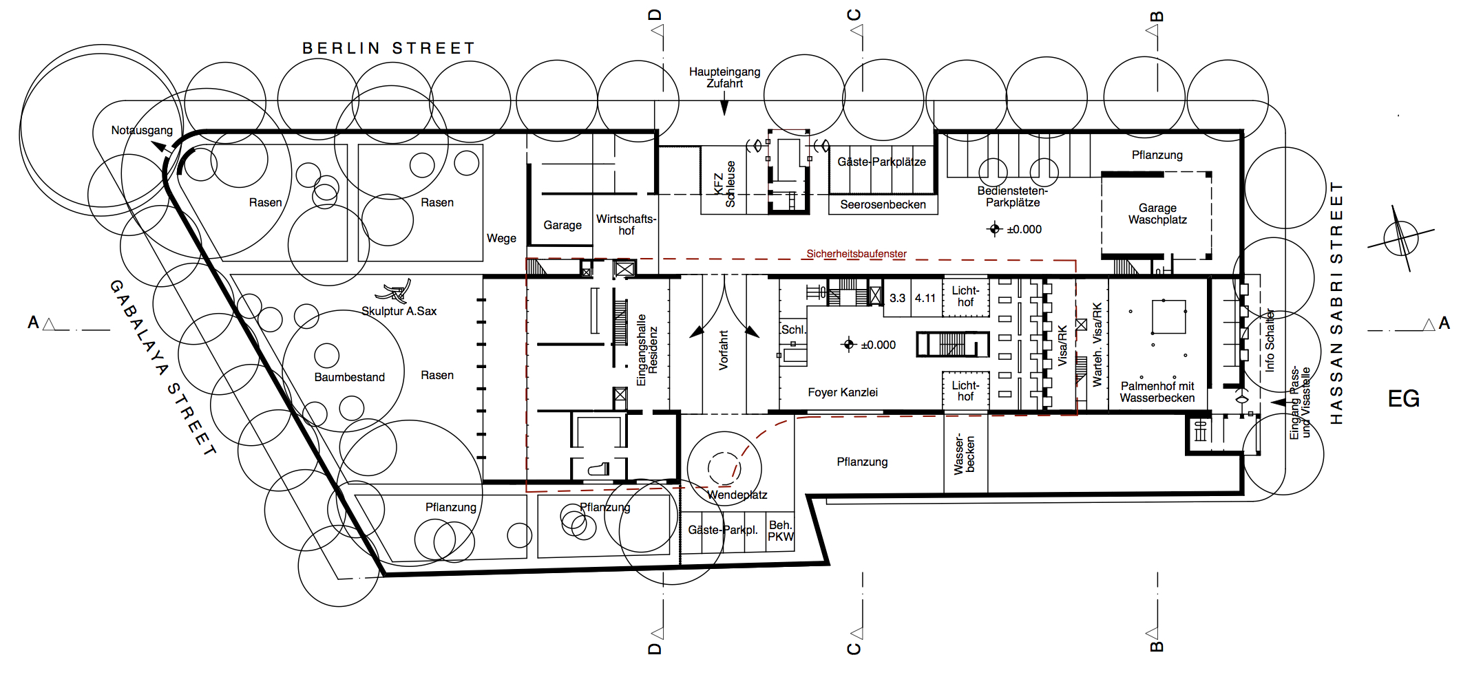
German Embassy in Cairo, Competition, 2014
In collaboration with Architect Kurt Wimmer for HPP Architects Cologne.
Category:
Architecture
To change your privacy setting, e.g. granting or withdrawing consent, click here:
Settings